Vier großzügige Eigentumswohnungen in einer Stadtvilla im Westen von Hamburg

Die Bauausführung wird als zweigeschossiges Gebäude zuzüglich eines Staffelgeschosses und eines unterliegenden Gartengeschosses erfolgen und in zwei Haushälften mit jeweils zwei Eigentumswohnungen unterteilt werden. Jede Haushälfte wird ein separates Treppenhaus mit Allgemeinfluren erhalten, die den Zugang zu den Wohnungen und Räumen im Untergeschoss (Gartengeschoss) schaffen. Im Vorgarten wird ein voll versenkbarer Parklift mit Begrünung für vier Pkw-Stellplätze entstehen, die optional erworben werden können. Die Errichtung der Stadtvilla wird in hoher Bauqualität nach KfW55-Effizenzstandard erfolgen und mit einer Luft-Wasser-Wärmepumpe und Fußbodenheizung ausgestattet werden. Die Gestaltung der jeweiligen Wohnung beinhaltet u.a. Parkettböden in Fischgrätmuster in den Wohnräumen und Bäder mit großformatigen Porcelaine-Fliesen und Produkte von Kaldewei, Dornbracht und Duravit.

Die grüne Umgebung prägt die Lage der Stadtvilla. Alter Baumbestand, unterschiedliche Parks in dem näheren Umfeld wie der Loki-Schmidt-Garten, Hans-Christian-Andersen-Park und auch der bekannte historische Jenischpark schaffen einen Ortscharakter, den man mit den Elbvororten verbindet. Ebenso besticht das nähere Umfeld durch ein vielseitiges Freizeit- und Kulturangebot. Sportvereine mit diversen Sportarten, u.a. Polo, Golf, Tennis, Hockey, Kunstmuseen wie das Ernst-Barlach-Haus, das Bargheer Museum, das Kulturzentrum Heidbarghof mit Konzert- und Kulturveranstaltungen. Familien schätzen die schnelle und gute Erreichbarkeit unterschiedlicher Schulen von der Grundschule bis zum Gymnasium. Hervorzuheben ist örtliche Nähe zur International School of Hamburg, die fußläufig in kurzer Zeit erreichbar ist.

Gardenhouse links

Fläche ca. 128 m², 5 Zimmer

Die linke Erdgeschosswohnung besteht aus fünf Zimmern und drei Bädern bzw. WC, verteilt über zwei Geschosse. Neben einer ca. 13 m² großen Terrasse gehört zu der Wohnung ein Sondernutzungsrecht an der rückwärtigen Gartenfläche. Zusätzlich zur Wohnung kann ein PKW-Stellplatz in einem Parklift für 55.000,00 € erworben werden.

Kaufpreis 1.410.000,00 €

Im Falle des Erwerbs zahlt jeweils der Käufer und der Verkäufer 2,38 % incl. MwSt. Maklercourtage. Der Käufer zahlt 4,5 % Grunderwerbssteuer sowie ca. 1,5 % Notar- und Gerichtskosten.

Erdgeschoss

Grundriss Erdgeschoss

Untergeschoss

Gardenhouse rechts

Fläche ca. 124 m², 5 Zimmer

Die rechte Erdgeschosswohnung besteht aus fünf Zimmern und drei Bädern bzw. WC, verteilt über zwei Geschosse. Neben einer ca. 11 m² großen Terrasse gehört zu der Wohnung ein Sondernutzungsrecht an der rückwärtigen Gartenfläche. Zusätzlich zur Wohnung kann ein PKW-Stellplatz in einem Parklift für 55.000,00 € erworben werden.

Kaufpreis verhandelbar

Im Falle des Erwerbs zahlt jeweils der Käufer und der Verkäufer 2,38 % incl. MwSt. Maklercourtage. Der Käufer zahlt 4,5 % Grunderwerbssteuer sowie ca. 1,5 % Notar- und Gerichtskosten.

Erdgeschoss

Untergeschoss

Penthouse links

Fläche ca. 149 m², 4 Zimmer

Die ca. 149 m²-Obergeschosswohnung besteht aus vier Zimmern und drei Bädern bzw. WC, verteilt über zwei Geschosse und aus einer etwa 15 m² große Dachterrasse und einem Balkon. Ein Kellerraum von 21 m² Fläche der Wohnung zugehörig. Zusätzlich zur Wohnung kann ein PKW-Stellplatz in einem Parklift für 55.000,00 € erworben werden.

Kaufpreis 1.641.000,00 €

Im Falle des Erwerbs zahlt jeweils der Käufer und der Verkäufer 2,38 % incl. MwSt. Maklercourtage. Der Käufer zahlt 4,5 % Grunderwerbssteuer sowie ca. 1,5 % Notar- und Gerichtskosten.

Obergeschoss

Staffelgeschoss

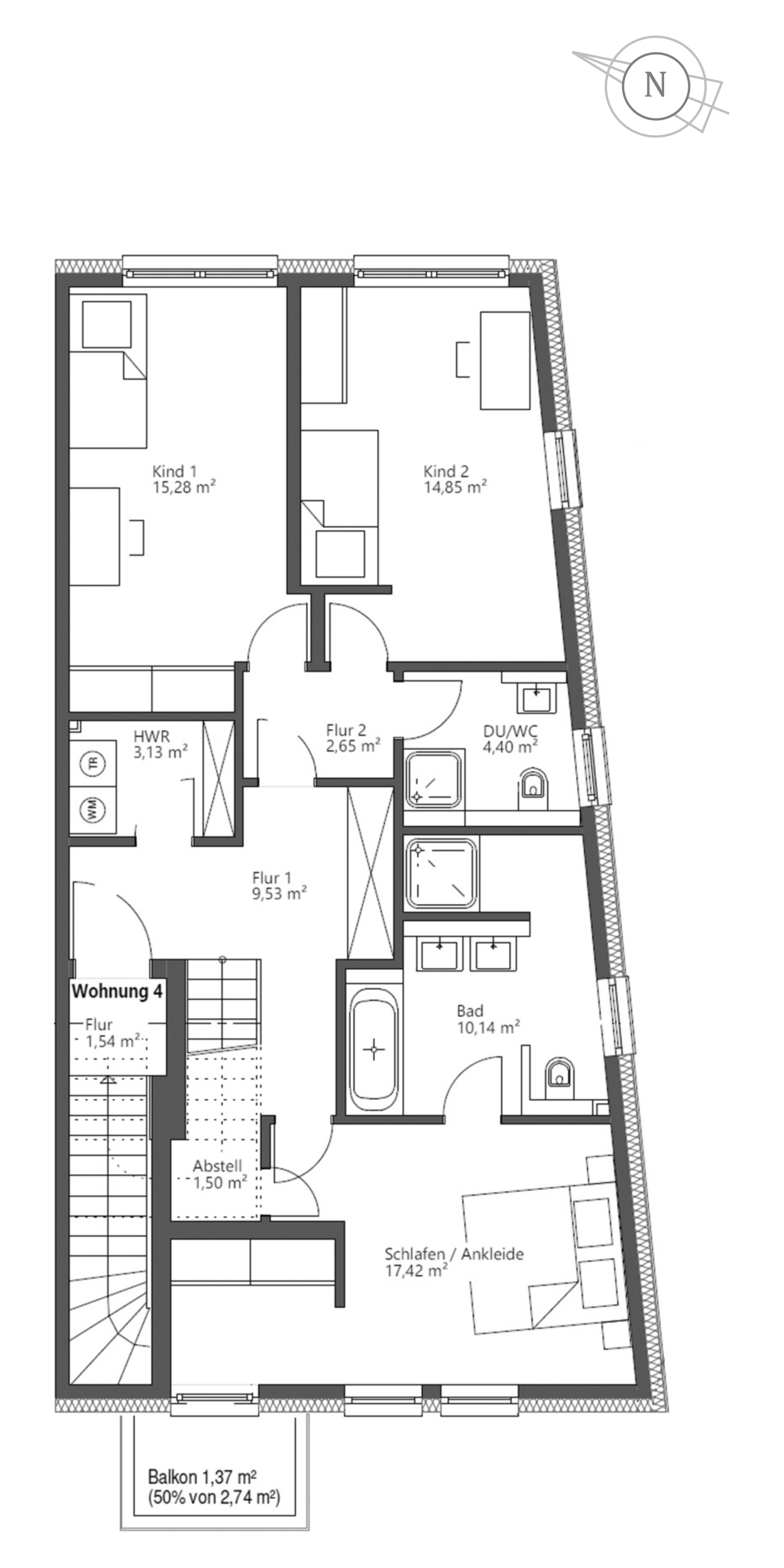
Penthouse rechts

Fläche ca. 147 m², 4 Zimmer

Die ca.147 m²-Obergeschosswohnung besteht aus vier Zimmern und drei Bädern bzw. WC, verteilt über zwei Geschosse und aus einer etwa 16 m² große Dachterrasse und einem Balkon. Ein Kellerraum von ca. 22 m² Fläche der Wohnung zugehörig. Zusätzlich zur Wohnung kann ein PKW-Stellplatz in einem Parklift für 55.000,00 € erworben werden.

Kaufpreis 1.614.000,00 €

Im Falle des Erwerbs zahlt jeweils der Käufer und der Verkäufer 2,38 % incl. MwSt. Maklercourtage. Der Käufer zahlt 4,5 % Grunderwerbssteuer sowie ca. 1,5 % Notar- und Gerichtskosten.

Obergeschoss

Staffelgeschoss